TLDR: This entitlement “paper flip” looked great on paper, but we lost $105,752 because our timeline was dependent on the city’s Development Agreement process, and key city staff turnover slowed approvals until our contract deadlines expired.
Biggest Lessons: Contract for worst-case timelines, validate local demand and absorption (not just county growth), do not spend ahead of key approvals, and treat lukewarm builder feedback as a red flag.
How do you lose $105,752 on a deal that looks safe, has city support, and pencils on paper?
From my first entitlement deal, I learned that these projects are really a series of risk mitigation steps that eventually result in a successful or failed project.
Unfortunately, that lesson ended up costing me exactly $105,752.
In this post, I’ll show the exact decision points where our risk mitigation fell short, how those gaps compounded over time, and what I would do differently before attempting another entitlement deal.
A fair warning: Land entitlements aren’t a beginner strategy.
I know there are hundreds of entitlement success stories out there. This just isn’t one of them.
If you are newer to land investing, treat this as a cautionary case study. If you are experienced and exploring entitlements, treat this as a checklist of risks to buffer before you ever go hard on earnest money.
Before we get into the numbers, here’s the setup and why we thought this was a strong entitlement play.
Background on me and my team
For two and a half years, a few team members and I had been land flipping (we’re still land flippers).
We were having success, heard about entitlements, and wanted to start diversifying and trying our hand at some different strategies.
During a conversation with an acquaintance of ours, who has done several entitlement deals, we started talking about a property that had the signs of a strong entitlement play. He was a civil engineer by education and knew the engineering side of projects really well.
We ran preliminary numbers, explored the opportunity, and moved forward on two adjacent parcels.
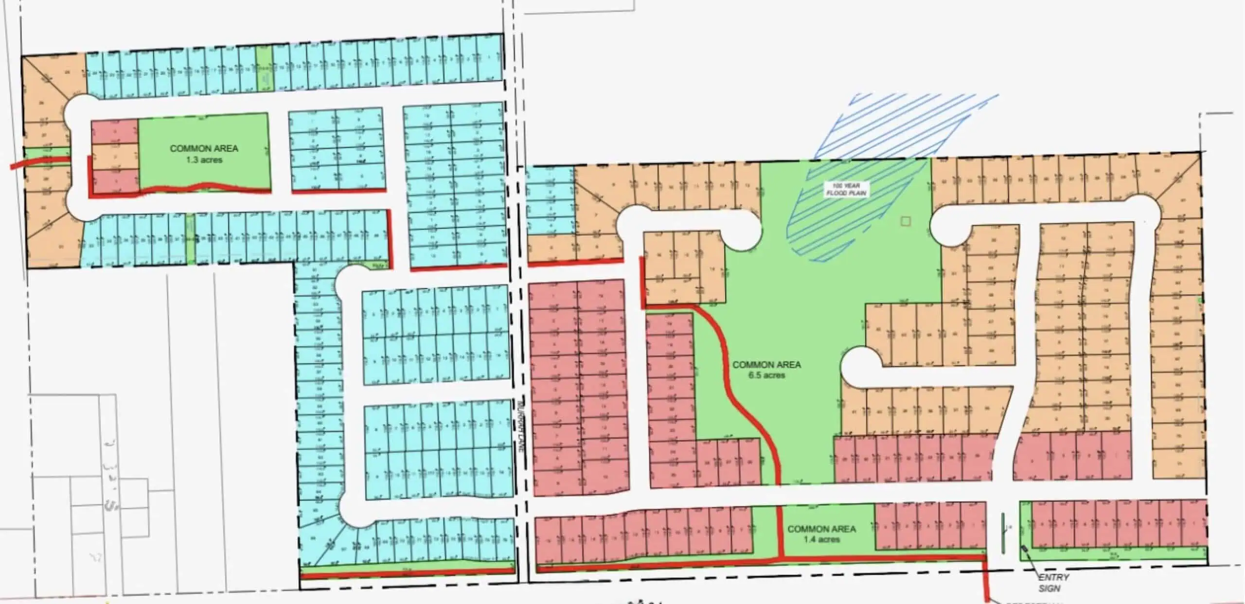
The deal: 58 acres and 2 sellers
The strategy was pretty standard: an entitlement paper flip.
The plan was to control the land, get the entitlements done while under contract, and sell to a builder the same day we closed on the purchase.
This is a standard paper flip that we’d heard about from other people in the entitlement space.
- Step 1: Buy raw land with a prolonged escrow.
- Step 2: Entitle (zoning, platting, approvals) while under contract.
- Step 3: Close the purchase and sell to a builder simultaneously.
The builder would then handle the horizontal construction (roads/pipes) and the vertical construction (the houses) after they purchased the land from us.
Quick definitions (so the rest of this is easier to follow):
- “Paper lot” means an entitled lot on paper, before horizontal work is installed.
- “Horizontal” is roads, utilities, grading, and infrastructure.
- “Vertical” is the homes.
The assembly
We put together two adjacent properties totaling 58 acres:
- Parcel A: 22 acres with two houses.
- Parcel B: 36 acres of raw land.
There were numerous factors that were favorable for the development:
- Significant road frontage along a highway for ingress and egress
- Water and sewer were fairly close and easy to tap into
- The city wanted to annex the land and would provide financial incentives
- The lots were located adjacent to a city park and sports complex
- Flat terrain with minimal environmental issues
At the time, those factors felt like built-in risk reducers, especially compared to sites with access issues, utility problems, or heavy environmental constraints.
The location and city support
The county was one of the fastest-growing in the nation, which we viewed as a major risk mitigator for sales velocity. On a local level, the properties were favorably located between a sports complex and a park under renovation.
From the start, the city loved the development.
They offered flexibility with two major financial tools:
- PID (Public Improvement District): This is where the city issues a bond to the developer to offset infrastructure costs. It’s paid back by residents over time via a special assessment in their property taxes.
- TIRZ (Tax Increment Reinvestment Zone): A tool that captures the increase in property tax revenue to reimburse the developer for public improvements.
Together, these incentives totaled roughly $6.3 million and were critical to making the project work for a builder.
While city support increased our confidence, it did not eliminate local market timing or absorption risk.
The upside and financial structure
The financial structure included a handful of risk mitigation decisions designed to minimize upfront cash needs while still maintaining a favorable margin. We negotiated deferred fees and used city incentives to secure a viable path toward our projected profit.
Acquisition pricing
- The 22 acres: To secure a 6-month escrow from sellers seeking a faster sale, we offered $1,750,000, which was above the asking price. Our strategy was to close with 20% down through investor financing (because there were homes on the property) and use rental income from the houses to offset holding costs.
- The 36 acres: We offered $1,700,000 (list price) but negotiated a longer runway (roughly 16 months) to complete entitlements.
Entitlement costs
Several of our partners had fee structures that deferred their portion until closing or their obligation had been completed. Deferred fees reduced early cash burn, but they did not eliminate exposure if the deal failed.
- Engineering: To minimize upfront burn, our engineer deferred a $200,000 fee for a 100% markup at closing, or at cost if the purchase failed. However, deferrals only applied to in-house work; we had to pay cash for all outsourced studies.
- Legal: The city required a Development Agreement first. We hired a local attorney for $10,000 upfront plus $180,000 in milestone fees, deferred until PID bond issuance but still owed upon reaching each milestone.
- Financial advisor: To maximize city incentives, we hired a specialized financial advisor costing $6,500 upfront. His total fees were $32,000 out of pocket and 0.75% of the bonds ($285,000), deferred until bond issuance.
- Retainer to the city: The city required a $25,000 retainer for third-party document reviews. Unused funds were refundable, but we remained liable for any costs exceeding that amount, an unexpected and potentially uncapped out-of-pocket expense.
- Earnest money: Unfortunately, we had earnest money for two deals that were hitting at the same time.
- 22-acre tract: $20,000 deposit. It went “hard” (non-refundable) after just 90 days.
- 36-acre tract: $20,000 deposit. Hard after 6 months.
We also had four 2-month extensions available for $10,000 each.
This is where the risk starts to become real: once earnest money goes hard, the city timeline becomes a true make-or-break constraint.
Total entitlement estimate
| Out-of-Pocket | Total Cost | |
| Earnest Money + Options | $43,000 | $43,000 |
| 36-Acre Extension Fees | $40,000 | $40,000 |
| Legal Fees | $10,000 | $10,000 (+ $170k out of the PID) |
| Financial Advisor | $32,000 | $32,000 (+ $285k out of the PID) |
| City Retainer | $25,000 | $25,000 |
| Engineering | $0 | $400,000 |
| Feasibility Studies | $35,000 | $35,000 |
| Miscellaneous | $5,000 | $5,000 |
| TOTAL | $190,000 | $590,000 |
The potential payout
Why take this risk? The upside was incredibly strong.
| Projection | |
| Total Lots | 265 |
| Total Land Purchase | $3,450,000 |
| Cost of Entitlements | $760,000 ($190k out of pocket) |
| Conservative Sales Price | $6,360,000 ($24k per paper lot) |
| Projected NET Profit | $2,150,000 |
In speaking with other folks who do entitlements, this return might be low for the amount of risk. We didn’t realize that at the time.
We also projected a higher sales price, but I’m being conservative here to show that even with our base case numbers the margin would have been solid.
The developer metrics
The PID and TIRZ incentives were major factors in the math working for a builder. Without them, the value of the paper lots decreases significantly as the development cost increases.
- Total lots: 265
- Horizontal development estimate (OPC): $12,500,000.
- Development cost per lot: $47,000.
- Total incentives: $6,300,000 ($3.8M PID + $2.5M TIRZ).
- Net development cost per lot: $23,400 (after incentives).
If the developer purchased the paper lots from us at $24,000 each, then had a net development cost of $23,400 per lot, their total developed lot cost would be roughly $47,400 after incentives.
On paper, the project looked great. We had a solid team, we had the city's support, and we had a $2.15 million profit waiting at the finish line.
Preliminary plat
For me, one of the most enjoyable parts of the entitlement process was designing a community from scratch during the concept plan and preliminary platting process.
Initially, the city said they’d be open to townhomes, but after speaking with numerous developers, it was clear that townhomes weren’t desirable for the market.
Plan 1: Townhomes in the NW Section
Plan 2: 40’, 50’, and 60’ Lots
The Development Agreement (DA)
The Development Agreement (DA) was our most critical risk mitigation hurdle and the absolute gatekeeper for the project. The city would not review a preliminary plat without this signed document.
More importantly, it provided the binding commitment for the tax incentives that our investors required to move forward. Without the DA, we had no certainty and no path to close on the land.
It defined the project roadmap by outlining key points such as:
- Annexation: The city was bringing the land officially into the city limits.
- The PID/TIRZ details: Finalizing the city's commitment to the $6.3 million in incentives.
- Building standards: Negotiating things like lot sizes, density, and setbacks.
- Site plan: Agreement on the site plan and lot sizes that would be in the development
Because of this, I would not close on the 22 acres until the city provided a binding Development Agreement.
We estimated the review and signing process would take 30 to 60 days. This timeline estimate turned out to be optimistic, and that gap is where the deal began to break.
Raising money and acquiring the 22 acres
The sellers of the 22 acres refused further extensions, which required an outright purchase to keep the deal moving forward.
To mitigate the risk of this early acquisition, we relied on the inherent value of the two existing homes rather than just vacant land.
We further reduced our downside by negotiating the price from $1,750,000 down to $1,250,000 due to shifting market uncertainty.
The transaction was structured through two separate purchase agreements as follows.
Investors
Through a personal contact of mine, I raised $750,000 between two investors.
I created a separate LLC for this buying entity where I was the manager and the investors were going to be the members.
The documents we put together and signed were:
- Operating Agreement (OA): The “rulebook” for the entity. It defines who makes decisions, how the group votes, and exactly how profits are split.
- Private Placement Memorandum (PPM): Also known as an “offering memorandum,” a PPM is a risk disclosure document. It protects you by detailing the investment strategy and every possible way the deal could fail.
- Subscription agreement: The formal “order form.” This is the legally binding contract where an investor commits a specific dollar amount to the deal.
RELATED: How to Start Your LLC (It’s Easier Than You Think!)
Home purchases
I had $750,000 from investors and was setting aside $225,000 for entitlement and carrying costs. That resulted in a loan amount of $725,000 and a favorable 58% LTV.
The simple version: we tried to structure the purchase conservatively so the homes could offset holding costs while we pushed entitlements forward.
Qualifying for a loan should have been straightforward, but traditional banks are rarely structured for these deals and presented several unique hurdles:
- Lenders resisted encumbering two homes with one loan.
- Banks preferred LLCs with fewer than five members, which complicated our investor raise.
- Most required immediate rental income to cover payments rather than relying on cash assets or planned rental income.
- The 45-day processing window was too slow for our expiring contract deadlines.
The unraveling
Time, not the market or the finances, ultimately killed the deal.
The timeline was dependent on moving our DA through the approval process. Our primary contact at the city left a few months into the project, wasn't immediately replaced, and response times slowed, which caused us to miss critical meeting agendas.
We reached a point where the sellers refused further extensions, forcing a heavy choice: close on the land without a binding Development Agreement for the city’s incentives or walk away.
Since closing would've been an unacceptable risk, I chose to protect our partners, return the $500,000 already wired, take my losses, and terminate the deal.
This is the part that is hard to appreciate until you live it: your entire timeline can hinge on one person’s availability and one meeting agenda cutoff.
The final bill
When the dust settled, the “tuition” for this lesson was steep. We didn't just lose time; we lost significant liquid capital.
Here is the exact breakdown of the $105,752 loss:
| Expense | Amount |
| Earnest Money Forfeiture | $20,000 |
| Option Fees | $4,500 |
| LLC Setup & Registration | $950 |
| Home Appraisals | $2,090 |
| DA Retainer to City | $6,893 |
| DA Attorney | $10,000 |
| PID/TIRZ Financial Analyst | $6,500 |
| Wetland Analysis | $6,679 |
| Phase I ESA | $4,655 |
| Traffic Control Plan | $13,100 |
| Engineering Fees | $30,385 |
| TOTAL | $105,752 |
RELATED: 237: He Lost $1M on a Land Deal…Then Made $1.4M on the Next
Comprehensive lessons in risk mitigation
Beyond the finances and deal mechanics, we learned a lot about thorough market analysis and disciplined execution to mitigate entitlement risk.
Here are a variety of lessons we learned through the process.
Market and site analysis
1. Local market fundamentals
We could have spent more time verifying that the city’s economic base and population supported our target buyer profile before committing to a site.
You can assess the current entitlement pipeline and projected absorption by requesting copies of all active Development Agreements and new building permits from city hall.
This data would allow us to evaluate competition and absorption over the upcoming years and ensure the local market could actually support our project upon completion.
2. The “drive-by test”
Next time, we will perform a “drive-by test” to evaluate the commute competition.
This involves “driving” from the primary employment hub or city toward the site and counting how many active developments a buyer passes before reaching the property. We’d also pull permits to know the absorption rate of these communities.
Since buyers driving to qualify for a home often stop at the first subdivision that meets their needs, a high count of closer options indicates you may be several years ahead of the actual path of growth.
3. Purchase a 3rd-party market study
We didn’t realize these studies existed during our project, but they’re an incredible resource for data and pipeline insights.
While they’re a significant investment at $10,000 to $15,000, you can use them as a high-level insurance policy to validate local demand.
Investing in professional data early can mitigate the risk of a six-figure loss by revealing market weaknesses before you commit significant capital.
4. Premium locations survive the market
External market shifts (like tariffs or interest rate changes) influence builder appetite.
In a tightening market, builders will prioritize premium projects and avoid taking gambles on secondary locations, no matter how clean the entitlements are. Prioritize premium locations in a tightening market.
If you only remember one market lesson from this deal, remember this: county growth headlines do not equal local absorption and builder demand.
Prioritize relationships
1. Validate demand with builder feedback
We learned that lukewarm interest from builders is a strong indicator of site quality.
The hesitation of major builders is a signal to re-evaluate whether a site is a primary location or a secondary one. If the major players are hesitant, there is usually a reason.
2. Build investor relationships early
Entitlement deals are high risk and stressful, so it’s difficult to rely on building new investor relationships when a deal is under pressure.
To mitigate funding risk, you can educate your network on the “paper flip” model well before you're under contract.
Building a deep roster of investors who understand the process ensures you aren't chasing capital while facing tight deadlines.
3. Protect your investors
Even though the deal didn’t close, the investors appreciated that I was protecting their capital by not pursuing a deal that was too risky. Both ended up investing in a different project just months later.
4. Local experts are key
The attorney and financial advisor we worked with were absolutely critical in helping us navigate the city's priorities and incentives. Without them, the DA would have taken even longer, and the financial incentive structure would have been impossible to navigate.
Execution and strategy
1. Contract for “worst-case” timelines
Build way more time than you think you need. If you think entitlements will take 10 months, ask for 18.
Municipal turnover and bureaucratic delays are project risks you cannot control; you can only buffer against them.
2. Don't spend money until you have to
We spent over $13,000 on a traffic control plan and had engineers working ahead on preliminary plats before the Development Agreement was signed. Sequence your spending so you do not fund Phase 3 studies while Phase 1 is still stuck in a lawyer’s inbox.
Had we done this, we’d have saved nearly $20,000.
3. Get to know the city
Building relationships with the City Council and Mayor can help a project be prioritized.
What I mean by this is simple: show up, build real relationships, understand what the city is trying to accomplish, and anticipate the process. It is not about trying to shortcut approvals.
Final word
The submarket we were in has massive potential, and I still believe in the growth of the Dallas outskirts. But development is a game of local market precision. We missed the mark on timing and market sentiment, and it was an expensive lesson.
With that said, I did really love the process and see myself doing entitlements again in the future. I’ll just have much more time built into my contracts to navigate the process and hurdles.
If you’ve done an entitlement paper flip, I’d love to hear about the risk buffers you build into your contracts and processes, especially around city timelines and pre-DA spending.

















You did very well by cutting your losses early. I had a similar situation several years ago with expiring options, and I opted to purchase the sites outright. Big Mistake! Lost $800,000. Should have taken an early smaller loss.
thank you for sharing lessons learned. I’ve started to create some youtubes on smaller deals gone bad. Our buybox has been 10-200k in many markets. “Eyes” on the property! Comps in a zipcode do not always equal your valuation. Outskirts, slope, access, utilities all are key to value. Hoping you had some easier deals that offset this one.
Thanks so much Adam for this detailed, well-written case study. I am a beginner and contemplating a similar 2-tract (but 1 seller) purchase for subdivision. This was very educational.